+593 98 741 9024 info@encaje.ec
Casa DB

Ficha Técnica
- Estilo Vanguardista
- Tipo Hogar y vivienda, residencial
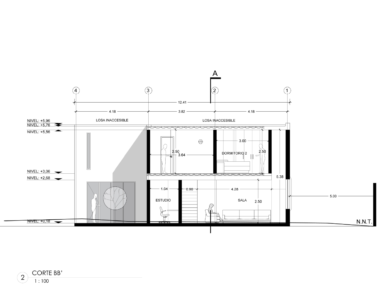
Este proyecto es una vivienda ubicada dentro de un sector periurbano, en la que por precauciones de seguridad no se puede mostrar como arquitectónicamente se quisiera, por precautelar la integridad de sus habitantes. Cuenta con un terreno amplio que necesitó ser preservado para garantizar áreas verdes amplias. Tiene la estructura de vivienda de conjunto residencial a partir de un cubo desfasado, que genera dos espacios al frente y al posterior, el primero funciona como un preámbulo al ingreso, marca una ruptura visual con el entorno exterior y da la bienvenida generando un recibidor a partir de la estructura metálica vista sobre la que fue construída, genera un volado figurativamente suspendido en el aire con celosía de ladrillo; el segundo funciona como un patio cubierto y zona de parrilla cubierto por una pérgola, ideal para compartir con familia. Cuenta con tres dormitorios completos ubicados en la segunda planta, los cuales reciben luz y calor al amanecer y al atardecer, lo cual garantiza condiciones térmicas ideales a toda hora. En la planta baja se encuentran la cocina, comedor, sala, baño social y un estudio. Es un programa amplio optimizado funcionalmente en dos plantas de 85 metros cuadrados, que generan la apariencia de una casa más grande de su tamaño real.

RENDERS
PLANIMETRÍA AMBIENTADA
PLANIMETRÍA ARQUITECTÓNICA
RESULTADOS


